HomeFor SaleBrand New Freehold Novena Landed with Lift
Brand New Freehold Novena Landed with Lift
S$ 7,880,000
(Starting From)
Shrewsbury road (D11 Novena / Newton / Thomson)
Details
Bedrooms:
68
PSF:
S$ 4,495 psf
Floor Size:
6,063 sqft
Land Size:
1,753 sqft
Property Type:
Landed- Terraced House
Floor Level:
N.A
Tenure:
Freehold
Build Year:
N.A
Furnishing:
Fully Furnished
Tenanted:
Vacant
Developer:
N.A
Description
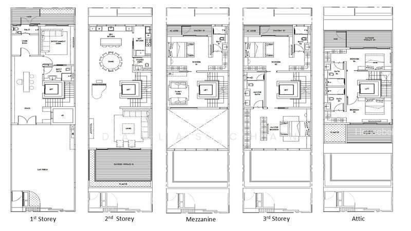
Brand New Freehold Landed Terrace, 6 mins to Novena MRT! Lift & Solar!
5 x Brand New Builts in 2026 PRIME District 11, Core Central Region NOVENA LANDED TERRACES | FREEHOLD | 6 BED 8 BATH
4 Homes LEFT FOR SALE: 1 SOLD as of 28/03/2026*** Land Sizes: 1,752sqft - 2,372sqft Built Up: 6,063sqft - 6,926sqft ▲ 4-6 mins walk to Novena MRT ▲ Within 1km to SJI-Junior ▲ 5 mins walk to Novena Shopping Malls (Velocity, Novena Square, Square 2, United Square) ▲ 6 mins walk to Pek Kio Market & Hawker ▲ Mins to Novena Medical Hub & Tan Tock Seng Hospital
● 8 Bed 6 Bath + Private Helper's Quarters with Ensuite Bath ● Schindler Lift (fits 9 pax) ● SOLAR-POWER Installed! ● Sheltered Car Porch (2-3 cars) with EV Readiness ● Entertainment Room on Ground Floor for private hosting ● Spacious Dining Hall & Dry Kitchen by CUBO Collective ● 6m High Ceilings Living Hall + Squarish Balcony for Alfresco Dining ● All 6 Bedrooms are Ensuite ● High End Fittings & Appliances by V-ZUG, LIEBHERR, GESSI, FASCINA & more!
For pleasure of ownership, please contact: DALLAS CHAN,www.h*****