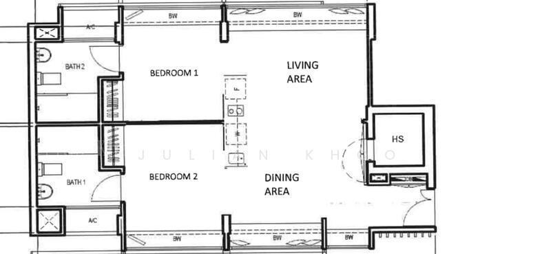
~ High ceiling + expansive full-height glass windows
~ Unblocked, bright, well-ventilated
~ Corner unit, privacy, only two apartments sharing the lift
~ Facilities : lap pool, gymnasium, bbq pits, car park and security
~ Conveniently located near Paya Lebar MRT, food centres, a vibrant blend of famous eateries and many of them open round-the-clock, shops, complete amenities, NTUC and Giant supermarkets, several shopping centres like Paya Lebar Square, Paya Lebar Quarter, S'pore Post Centre, Tg Katong Complex, City Plaza and Kinex Mall
Rental inclusive of air con servicing once every two months arranged by the landlord